Descripción

🏡 Casa en venta de 180 m2 de construcción!! en Calle Geranios, Fracc. Blancas Mariposas, Villahermosa, Tab. ¡La oportunidad que estabas esperando dentro de la ciudad! por $2,390,000 🏡

✨ Características destacadas de esta casa:

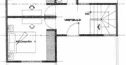
🏗 Lote de 8m x 15m, total 120 mt2, sup. construida 180 m2!
✅ 4 recámaras, sala, comedor, cocina, 3 baños
✅ Patio de servicio y terraza!!
✅ Casa con buen mantenimiento y todos los servicios públicos!
✅ Estacionamiento y patio de servicio techados!

✅Casa dentro de la ciudad de Villahermosa. ¡Conectividad y comodidad al alcance de tu mano!, primaria, secundaria, preparatoria, centros comerciales. etc.

📞 ¡Contáctanos ahora para más información o agendar una cita!! ¡Se acepta crédito, Infonavit, Fovissste, (recuerda que puedes unir creditos con pareja, familiar o conocido para alcanzar el monto deseado) bancario o recursos propios!! 🤝

DIRECCIÓN

  • DIRECCIÓN Geranios, Blancas Mariposas, 86170 Villahermosa, Tab., México
  • País México
  • Provincia/Estado
  • Ciudad/Pueblo
  • Código Postal / ZIP 86170
Abrir en Google Maps

Descripción general

  • ID de propiedad 12545
  • Precio $2,390,000 M
  • tipo de propiedad
  • Estado de la propiedad
  • Habitaciones 4
  • Dormitorios 4
  • Baños 3
  • Año de construcción 15
  • Tamaño 120 m2
  • Área terrestre 180 m2
  • Garajes 2

Obtener las direcciones

Puntuación de caminata

58

Puntuación de caminata

Somewhat Walkable

Ver más

Contacto

ADRIAN GONZALEZ

Vendedor de propiedad

9931217439
Otras propiedades
¡Por favor, escriba su nombre!
¡Por favor ingresa tu teléfono!
¡Por favor ingrese su correo electrónico válido!
¡Por favor ingrese su mensaje!

Calificaciones y reseñas

0 0 reseñas
  • 5 0%
  • 4 0%
  • 3 0%
  • 2 0%
  • 1 0%

0 reseñas

Similar Properties